Terasové ukončovacie profily majú nielen funkciu estetickú, ale plnia aj funkciu ochrannú. Chránia a zakrývajú okraje dlažby pred poškodením.
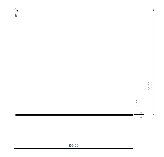
Základné hliníkové „L“ profily sú vyrobené z hliníka hrúbky 1,0 mm, dĺžky 2 m, s čelnou hranou výšky 30, 40, 50, 70, 90, 110 a 130 mm. Profily majú každých 10 cm otvory pre odvod vody z terasy. Profily dodávame vo farebnom prevedení sivá RAL 7001 antracit 7016 hnedá RAL 8017 . Jednoduchá a rýchla montáž terasových profilov sa vykonáva buď mechanickou fixáciou, pomocou samolepiacej butylovej pásky a alebo lepením polymérnym tmelom. Pre spojenie dvoch rovnakých profilov "L" je nutné ponechať 3-5 mm medzeru na dilatovanie a túto medzeru prekryť spojkou 40 mm, upevnenú vhodným tmelom, odolným proti poveternostným podmienkam (polymér).
Pri výbere ukončovacích profilov pre terče je dôležité zohľadniť:
- Hrúbku dlažby: Profily musia byť kompatibilné s hrúbkou dlažby.
- Výšku terčov: Profily musia byť vhodné pre výšku použitých terčov.
Výhody
- Estetická funkcia
- Inštalácia profilov zabráni pohybu dlažby
- Odvod dažďovej vody medzi dlažbou a podkladom
- Jednoduchá inštalácia a údržba
- Odolnosť voči klimatickým podmienkam















